VIRTUELLER RUNDGANG

Station 1: SONDERBAUWERKE IM VERBANDSGEBIET

Zuerst wird das Abwasser durch die Ortskanalsysteme und Transportkanalleitungen von rund 24 Kilometer in die Kläranlage transportiert. 24 Pumpstationen und 8 Sonderbauwerke (Speicher oder Mischwasserentlastungen) werden vom Verband betreut. Die meisten sind unter der Erde und nur durch einen Schaltschrank und mehrere Kanaldeckel nebeneinander erkennbar, andere sind auffälliger.

Station 2: ABWASSERHEBEWERK

Durch Schaufelspiralen wird das Abwasser über sechs Höhenmeter gehoben, um danach selbstständig durch die gesamte Anlage zu fließen. Eine Notfallpumpe kommt beim Ausfall einer Hebeschnecke automatisch zum Einsatz.

Station 3: RECHENHAUS MIT RECHENGUTWÄSCHER

Die Rechen entfernen alle schwimmenden Teile wie Textilien, Hygieneartikel und ähnliche Materialien, die eigentlich gar nicht hier sein sollten, aus dem angelieferten Abwasser. Dieses Material wird gewaschen, gepresst und entsorgt. 

Station 4: SAND-/FETTFANG

Im belüfteten Sand-/Fettfang werden weitere Materialien wie Sand, Kieselsteine, Zigarettenstummel und Fett aus dem Abwasser entfernt.

Station 5: SANDWÄSCHER

Die Rückstände aus Station 4 werden in den Sandwäscher, der ebenfalls im Rechenhaus platziert ist, gepumpt und ausgewaschen, in eine Transportmulde befördert und als Sondermüll auf einer Deponie abgelagert.

Station 6: ANAEROBBECKEN

Im Anaerobbecken mischt sich frisches Abwasser mit dem Belebtschlamm aus der Rückführung aus den Nachklärbecken. In diesem anaeroben Zustand beginnen die Mikroorganismen des Belebtschlammes bereits mit dem Abbau von Phosphor im frischen Abwasser, was zu einer Reduktion des benötigten Fällmittels führt. Danach wird das Gemisch von einem Verteilbecken aus auf die beiden Belebungsbecken aufgeteilt.

Station 7: BELEBUNGSBECKEN

Hier findet die biologische Reinigung des Abwassers statt. Die Mikroorganismen werden durch Zufuhr von Sauerstoff (Nitrifikation) über die Oberflächenbelüfter zum Verzehr der Kohlenstoffverbindungen angeregt. Durch Abschalten der Sauerstoffzufuhr (Denitrifikation) werden für andere Mikroorganismen optimale Zustände für die Entfernung

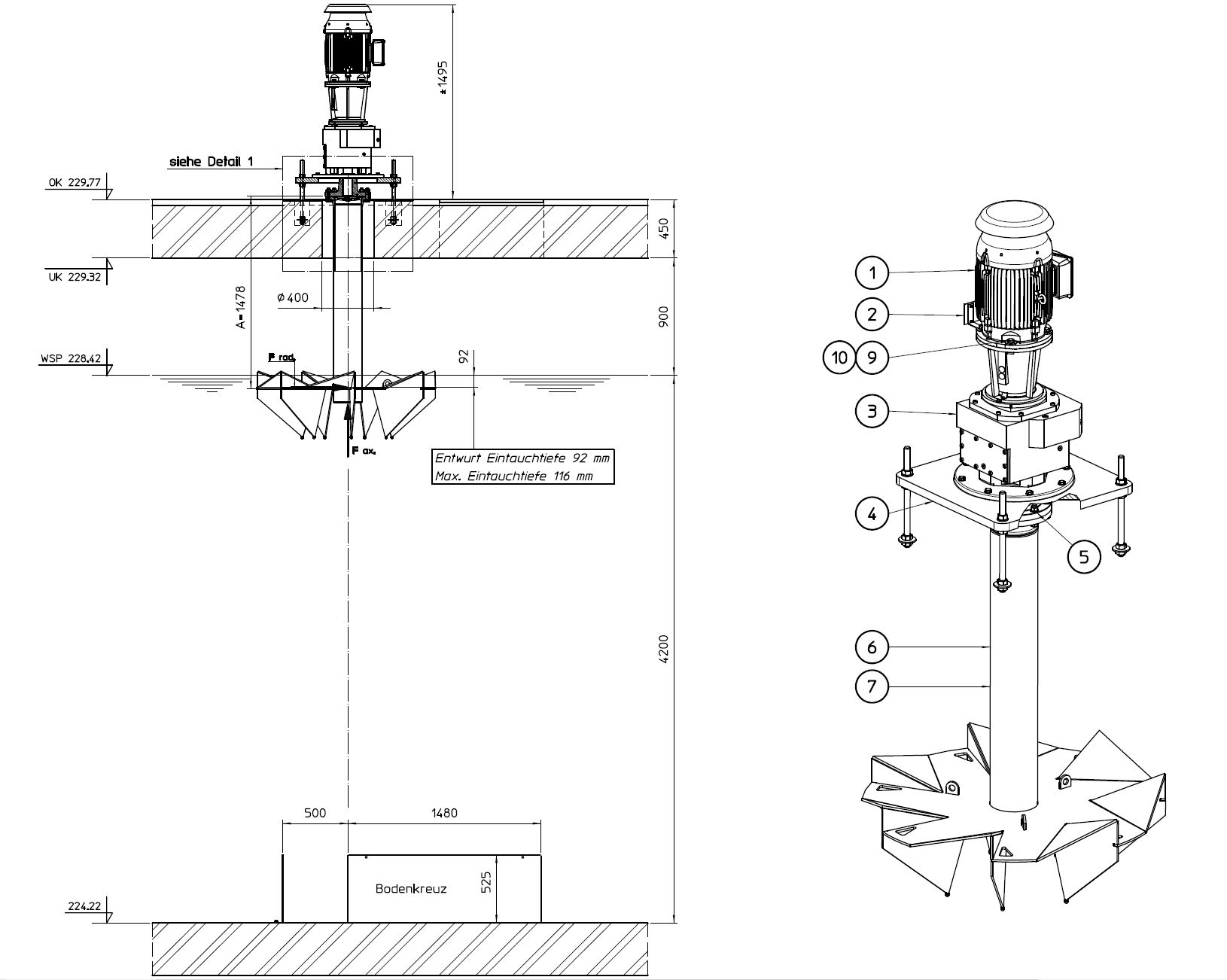
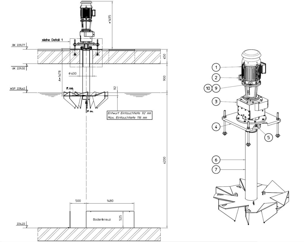
Station 8: OBERFLÄCHENBELÜFTER

Die Oberflächenbelüfter (Rotoren) sind für den gleichmäßigen Eintrag von Luftsauerstoff in die Belebungsbecken zuständig und bewirken auch gleichzeitig den Transport des Abwasser-Belebtschlammgemischs in den Becken. Das Abwasser-Belebtschlammgemisch muss ständig im Umlauf gehalten werden, damit die Belebtschlammflocken und die Mikroorganismen nicht zu Boden sinken und so den biologischen Reinigungsprozess gefährden. Laufen die Rotoren gerade nicht, erledigen diese Arbeit Rührwerke.

Station 9: PHOSPHORFÄLLUNG - VERTEILBECKEN NACHKLÄRUNG

Durch Zugabe des Fällmittels, einer Eisentrichlorid-Lösung, werden die Belebtschlammflocken vor dem Eintritt in die Nachklärbecken mit Eisenmolekülen beschwert und der Phosphor an die Flocken gebunden. Damit wird zum einen in den Nachklärbecken ein gutes Absetzen des Schlamms erreicht, zum anderen der Phosphor aus dem gereinigten Wasser entfernt.

Station 10: NACHKLÄRBECKEN

In den Nachklärbecken wird das Gemisch in Klarwasser und Rücklaufschlamm getrennt. Die mit Eisenmolekülen beschwerten Schlammflocken sinken zu Boden, werden zur Mitte geschoben und über den trichterförmigen Mittelteil von Rücklaufschlammpumpen abgesaugt. An der Oberfläche entsteht die Klarwasserzone, die über ein Ablaufsystem (Tauchrohre) in den sogenannten Vorfluter, die Leitha, abgeleitet wird. Oben treibende Verschmutzungen wie Blätter werden mittels Schwimmschlammräumung zurück in den Reinigungskreislauf gebracht.

Station 11: ABLAUFMESSUNG

Bei der Ablaufmessung werden automatisch Proben gezogen und der Grad der Reinigung unter strengen gesetzlichen Richtlinien und mit Hilfe der Selbstkontrolle sowie der ständigen Kontrolle der Gewässeraufsicht festgestellt. Die Ablaufmenge wird in einer eigenen Messstrecke im Ablaufbauwerk gemessen, registriert, und somit werden Frachten errechnet und kontrolliert. 

Station 12: RÜCKLAUFSCHLAMMHEBEWERK

Im Rücklaufschlammhebewerk sind drei Schneckenpumpen für den Transport des Belebtschlammgemisches (Rücklaufschlamm) aus den Nachklärbecken zuständig. Der Rücklaufschlamm wird wieder in das Anaerobbecken gepumpt, mit dem frischen Wasser vermischt, und der Kreislauf der Reinigung beginnt erneut. Da die die Mikroorganismen absterben und Ausscheidungen im Wasser hinterlassen, muss periodisch der überschüssige Rücklaufschlamm zur Weiterverarbeitung in die Schlammstabilisierung abgezogen werden.

Station 13: SCHLAMMSTABILISIERUNG

Der Überschussschlamm wird in die Schlammstabilisierungsbecken mit ingesamt drei Kaskaden gepumpt, wo er eingedickt und mittels drei Kreiselbelüftern stabilisiert wird. Dadurch wird unter kontinuierlicher Messung von Temperatur und Sauerstoffgehalt Luft-Sauerstoff eingetragen (aerobe Stabilisierung), damit bei der Weiterbehandlung in der solaren Trocknung oder beim Pressen in die Container keine Geruchsbelästigung mehr auftritt.

Station 14: SCHLAMMVORLAGEBECKEN

Aus dem Stabilisierungsbecken wird so viel Schlamm in das Schlammvorlagebecken gepumpt, dass der TS-Gehalt im Stabilisierungsbecken gleich bleibt und genug Schlamm für die Presse vorgelagert wird, damit diese kontinuierlich im 24h-Betrieb arbeiten kann. Rührwerke beziehungsweise Wirbeljets sorgen dafür, dass das Schlammgemisch homogen bleibt und nicht absinkt.

Station 15: SCHLAMMPRESSE

Der stabilisierte und leicht eingedickte Schlamm (TS rund 2%) wird maschinell entwässert und auf einen TS-Gehalt von maximal 30% gebracht. Dann wird er je nach Außen- und Schlammtemperatur zur weiteren Bearbeitung entweder in der solaren Trocknung weitergetrocknet (April bis Oktober) oder in Container gepresst. Klärschlamm hat wichtige Inhaltsstoffe (Dünger) für Pflanzen, zum Beispiel Phosphor. Deshalb versuchten wir bisher unter kontinuierlichen und strengen Kontrollen, dem natürlichen Kreislauf der Natur so viel Qualitätsklärschlamm wie möglich wieder zurückzuführen. In naher Zukunft ist durch eine Änderung in den gesetzlichen Rahmenbedingungen diese Art der Verwertung in Österreich nicht mehr möglich, und der Phosphor im Schlamm muss anderweitig recycelt werden

Station 16: SOLARE TROCKNUNG (GLASHAUS)

Der gepresste Klärschlamm kommt in ein Glashaus (96 x 12 Meter) zur Trocknung. Mit einer Wendeeinrichtung wird darin der Klärschlamm umgewälzt und je nach Trocknungszustand weitertransportiert, bis dieser am Ende des Glashauses mit einem TS-Gehalt von mindestens 75% ankommt. Das führt zu einer enormen Reduktion des zu transportierenden Volumens in Richtung Recycling und trägt zum Umweltschutz bei. 

Station 17: CONTAINERPLATZ

Sollte einer weitere Trocknung aufgrund der Außen- oder Schlammtemperatur in der Solaren Trocknungshalle nicht möglich sein (Winter), kann auch in Container gepresst werden. So kann der Klärschlamm mit weniger TS-Gehalt und mehr Transportvolumen ebenfalls der Wiederverwertung zugeführt werden.

Station 18: SCHLAMMSPEICHER

Die Schlammspeicher, die früher zur Speicherung des Klärschlamms zur direkten, landwirtschaftlichen Verwertung genutzt wurden, stehen nun als Zwischenspeicher bei Revisionen oder Gebrechen zur Verfügung. Der Klärschlamm kann hier zwischengelagert werden, bevor er wieder zurück in das Stabilisierungsbecken oder Schlammvorlagebecken gepumpt wird. Bei Ausfall der eigenen Presse kann der Schlamm von hier aus auch durch einen Fremdpresser (Dienstleistung) gepresst und entsorgt werden. 

Station 19: HOCHWASSERPUMPWERK

Die Hochwassersicherheit der Kläranlage und des vorgelagerten Kanalnetzes wurde angepasst, sodass es bei Starkregen oder Hochwasser nicht mehr zu Überlastungen kommt. Bei den Regenüberläufen, die in die Leitha ableiten, wurden Rückstausicherungen eingebaut, und bei der Mischwasserentlastung „Alte Kläranlage“ und der Kläranlage wurden Hochwasserpumpwerke errichtet.

Station 20: LEITHA

Zum Schluss wird das gereinigte Abwasser dem natürlichen Wasserkreislauf zugeführt. In heißen Sommermonaten ist diese Quelle manchmal die einzige Versorgung, die die Leitha in diesem Bereich vor gänzlicher Austrocknung schützt und die Vegetation am Leben erhält. Deshalb werden die streng festgesetzten Grenzwerte kontinuierlich durch uns, und unabhängig davon auch durch die Wasserrechtsbehörde, genaustens kontrolliert und überwacht.

Accessibility Toolbar